Фильтр
По популярности (убывание)
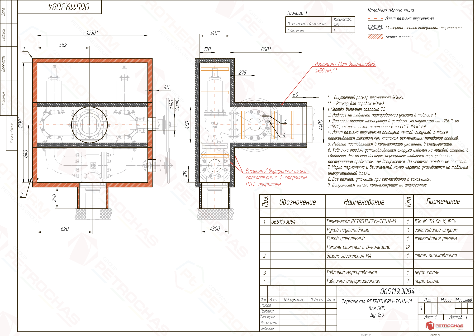
Термочехлы для клапанов
Термочехлы для клапанов
Термочехлы для клапанов
Термочехлы для клапанов
