Соединительные коробки РТВ 602
Предназначены для подключения к силовой сети саморегулирующихся электрических нагревательных кабелей, а также для разветвления саморегулирующихся нагревательных кабелей.
Коробки поставляются в различной комплектации, в зависимости от варианта крепления к обогреваемому трубопроводу или резервуару:


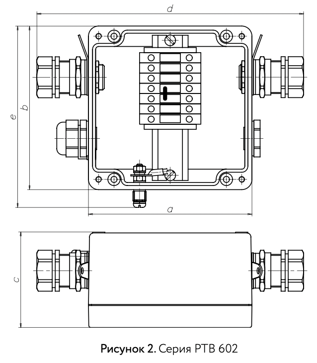
Габаритные размеры

Технические характеристики
Подробности сертификации
№ ЕАЭС RU C-RU.AA87.B.00406/20
Коробки поставляются в различной комплектации, в зависимости от варианта крепления к обогреваемому трубопроводу или резервуару:
- РТВ 602 крепятся на стене здания, металлоконструкции или при помощи кронштейна непосредственно на трубопроводе (кронштейны поставляются отдельно).
- Эффективное решение для подключения питания к электрическим нагревательным кабелям, расположенным под теплоизоляцией обогреваемого объекта
- Применяются для всех типов саморегулирую- щихся электрических нагревательных кабелей Исключают риск повреждения нагревательных кабелей в местах заделки
- Имеют сертификат соответствия для применения во взрывоопасных зонах
- Конструкция корпуса обеспечивает защиту от проникновения влаги и пыли IP66 и высокую коррозионную стойкость. Кабельные вводы коробки предназначены для подключения небронированных силовых кабелей диаметром от 7 до 18 мм или бронированных силовых кабелей диаметром от 12 до 20 мм.
- Применяемые клеммные наборы позволяют обеспечить подключение многожильных или одножильных проводов сечением от 1,5 до 10 мм2. Для заказов доступны исполнения коробок с винтовы- ми и пружинными клеммными зажимами.
- Основные комплектующие входят в состав поставки. Металлический хомут PFS/3, устройство вводов под теплоизоляцию LEK/U и ввод герметичный гибкий ВГГ заказываются отдельно
- Широкий спектр решаемых задач
- Быстрый и простой монтаж
- Высокая термостойкость
- Не подвергаются коррозии


Габаритные размеры

Технические характеристики
|
Климатическое исполнение и категория размещения по ГОСТ 15150-69 |
УХЛ1 |
|
Степень пылевлагозащиты |
IP66 |
|
Маркировка взрывозащиты |
1Ex e IIC T6...T3 Gb X |
|
Рабочий диапазон температур окружающей среды |
-60...+55 °С |
| Рабочее напряжение | до 550 В |
| Рабочий ток | до 50 А |
| Габаритные размеры корпуса | 160x160x94,5 мм |
| Вес коробки в максимальной комплектации |
2,5 кг |
| Материал/цвет корпуса |
Стеклоармированный полиэстер / черный |
Подробности сертификации
№ ЕАЭС RU C-RU.AA87.B.00406/20
